Продается 4-х комн. квартира, 180 кв.м., 4/6 эт

Обзор
Стоимость
32 000 000
РемонтЧерновая отделка
Доля в квартиреНет
Онлайн показмогу провести
Статус Недвижимости АвитоКвартира
ДворДетская площадка
КонсьержЕсть
Тип парковкиПодземная
Способ связи avitoПо телефону и в сообщениях
Узаконена ли планировкаЕсть
Есть ли право собственностиЕсть
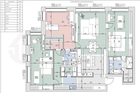
Комнат в квартире4
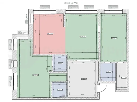
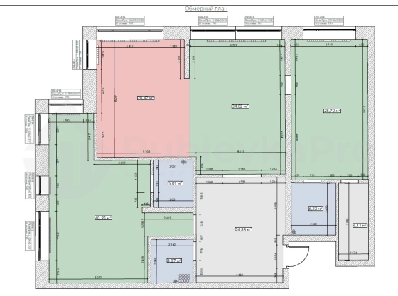
Площадь, кв.м.180
Площадь кухни, кв.м.30
Этаж4
Этажность6
Материал стенкирпично-монолитный
Адрес
Населенный пунктдеревня Семенково
Район городакоттеджный посёлок Азарово Северное
Улицаулица Сиреневая
Номер дома6
В избранное 4-комн. квартира, 180 м², 8 окон

Живу в поселке, ключи на руках! Прямой представитель собственника! Показ в любое время! СТАТУС КВАРТИРЫ (не апартаменты)!

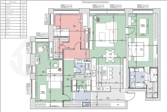
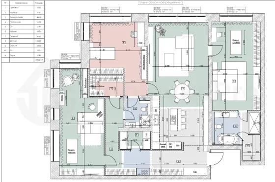
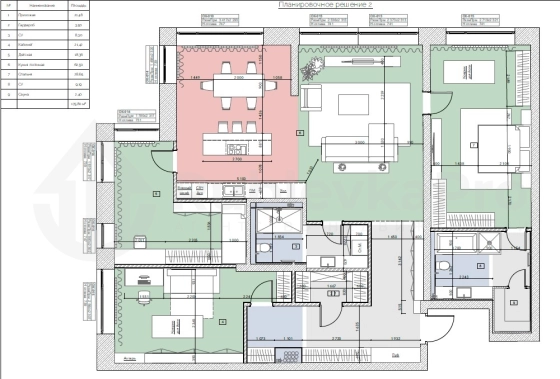
Продам великолепную квартиру 180 м2 с самыми лучшими видовыми характеристиками - на парковую зону, пруды и лес.  Квартира без отделки, свободная планировка, 8 окон, потолки 3.50. 3 спальни и кухня-гостиная, гардеробные, санузлы в каждой комнате. Много света даже в пасмурную погоду. В подарок покупателю 4 проекта 4-х комнатных планировок. Элегантная входная группа дома представляет собой невероятных размеров вестибюль, отделанный мрамором, гранитом, с элементами мозаики. На этажах оборудованы подсобные помещения. Дом с подземным паркингом. 
КП Азарово Северное - уникальный посёлок премиум класса в 20-ти км от Москвы.Круглосуточно охраняемый, продуманный до мелочей проект для успешных и думающих людей. Общая площадь территории около 80 га, половина из которой - невероятной красоты заповедный Новодарьинский лес. Территория поселка великолепно благоустроена, выполнены ландшафтные работы, фонтаны, установлено декоративное освещение, оборудованы детские площадки, прогулочные дорожки. Лесной парк с чудесными прогулочными зонами. Зимой обустроены отличные лыжные трассы, летом - детские и спортивные площадки, зоны для пикника и барбекю, роликовая дорожка. В поселке одна из лучших школ ERA, Британский детский сад, конный клуб, спорткомплекс. Безопасность поселка гарантирует профессиональная охранная служба: 8 КПП на въезде и выезде, видеонаблюдение 24 ч, ведется круглосуточная вооруженная охрана и патрулирование. Все коммуникации централизованные. Водоснабжение из двух артезианских скважин. Система канализации централизованная - в поселке установлены очистные сооружения. Профессиональная служба эксплуатации с круглосуточным дежурством специалистов: слесари, сантехники, электрики и др. В непосредственной близости от поселка расположен суперсовременный клинический госпиталь "Лапино", супермаркеты: Азбука вкуса, ВкусВилл и Перекрёсток, рестораны, фермерский рынок, бассейн, спа, фитнес-центр, корты для большого тенниса, футбольное поле, банный комплекс с хамамом, сауной.  Добираться до КП "Азарово" очень просто и быстро - по платной трассе по Можайскому шоссе - 15 минут., а по Рублево-Успенскому ш. - 30 минут. В том числе доступны маршруты по Новорижскому и Ильинскому шоссе.
Здесь хочется жить, растить детей, создавать и хранить семейные традиции!
Важно! Статус - квартира! Коммунальные платежи 15 тыс.руб в месяц без счетчиков! Один собственник. Полная сумма в договоре. Ипотека возможна.  Оперативный показ.

Заинтересовал объект? Пишите или звоните нам в любое время!
Оставьте в сообщении свой номер телефона для обратной связи! Мы перезвоним вам в течение дня.
Наше агентство - прямой представитель собственника этого дома, поэтому мы сможем ответить на все ваши вопросы.
Каждому клиенту мы гарантируем полное юридическое сопровождение.
В удобное для вас время организуем показ!

Расположение

Важно! На карте не всегда указано точное местоположение. Более точную информацию можно узнать у менеджера, разместившего объект