Продается 3-х комн. квартира, 147.6 кв.м., 4/5 эт
| Стоимость | 45 000 000 |
|---|---|
| Ремонт | Дизайнерский |
| Доля в квартире | Нет |
| Онлайн показ | могу провести |
| Статус Недвижимости Авито | Квартира |
| Двор | Закрытая территория |
| Консьерж | Есть |
| Тип парковки | Подземная |
| Способ связи avito | По телефону и в сообщениях |
| Узаконена ли планировка | Есть |
| Есть ли право собственности | Есть |
| Тип дома cian | Монолитный |
| Номер телефона для подключения функционала чатов. выгрузка | +79261182707 |
| Количество спален | 2 |
| Комнат в квартире | 3 |
| Площадь, кв.м. | 147.6 |
| Площадь кухни, кв.м. | 48.8 |
| Этаж | 4 |
| Этажность | 5 |
| Материал стен | кирпично-монолитный |
| Населенный пункт | деревня Семенково |
|---|---|
| Район города | коттеджный посёлок Азарово Южное |
| Улица | улица Новогодняя |
| Номер дома | 2 |
Живу в поселке, ключи на руках! Прямой представитель собственника! Показ в любое время!
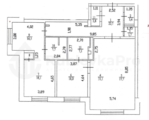
Продам 3 комнатную видовую квартиру на 4 этаже камерного дома в премиальном коттеджном поселке Азарово. Квартира расположена на 4 этаже 5 этажного дома. В квартире площадью 148 м2 с потолками 3,8 м и панорамными окнами расположена большая кухня- гостиная 49м2, две спальни по 18 м2, каждая со своим санузлом, в одной из спален гардеробная комната, место для кабинета/игровой 16,5м2, гостевой санузел, постирочная, гардеробная комната, просторный коридор. Ремонт выполнен в спокойных тонах.
Дом с круглосуточной охраной, лобби, гостевой санузел, широкие светлые коридоры, два пассажирских лифта, подземным паркингом на -1 и 1 этажах, семейные машиномета на два автомобиля и своей кладовой, Дом расположен в обжитой части поселка.
Азарово - отличное место для загородной жизни. В поселок можно попасть за 24 минуты по скоростной трассе от Москва-Сити , по Рублевке и по Минскому шоссе. Азарово находится в окружении 40 Га Ново-Дарьинского леса
Для семейного отдыха на территории установлены детские площадки, фонтаны, благоустроены прогулочные зоны на берегу озера и по парку, проложена освещаемая дорожка с твердым покрытием в лесу. В Азарово функционируют три детских сада, в том числе известный на всю страну трёхъязычный сад «Кот в сапогах. Работает частная школа «Эра» для начальных и старших классов. Многие жители Рублёвки привозят сюда своих детей для получения знаний на иностранных языках.
Улицы поселка оформлены в современном стиле. Круглосуточно осуществляется охрана поселка.
Заинтересовал объект? Пишите или звоните нам в любое время!
Оставьте в сообщении свой номер телефона для обратной связи! Мы перезвоним вам в течение дня.
Наше агентство - прямой представитель собственника этого дома, поэтому мы сможем ответить на все ваши вопросы.
Каждому клиенту мы гарантируем полное юридическое сопровождение.
В удобное для вас время организуем показ!







































































