Живу в поселке, ключи на руках! Прямой представитель собственника! Показ в любое время!
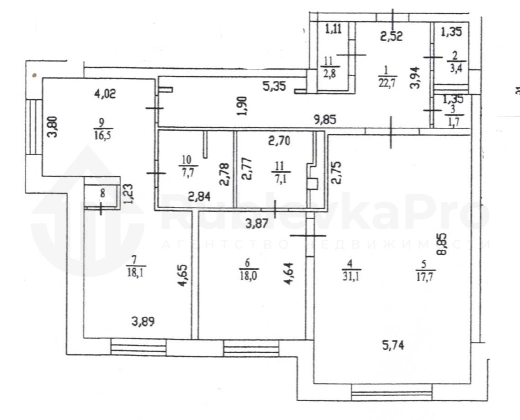
Продам 3 комнатную видовую квартиру на 4 этаже камерного дома в премиальном коттеджном поселке Азарово. Квартира расположена на 4 этаже 5 этажного дома. В квартире площадью 148 м2 с потолками 3,8 м и панорамными окнами расположена большая кухня- гостиная 49м2, две спальни по 18 м2, каждая со своим санузлом, в одной из спален гардеробная комната, место для кабинета/игровой 16,5м2, гостевой санузел, постирочная, гардеробная комната, просторный коридор. Ремонт выполнен в спокойных тонах.
Дом с круглосуточной охраной, лобби, гостевой санузел, широкие светлые коридоры, два пассажирских лифта, подземным паркингом на -1 и 1 этажах, семейные машиномета на два автомобиля и своей кладовой, Дом расположен в обжитой части поселка.
Азарово - отличное место для загородной жизни. В поселок можно попасть за 24 минуты по скоростной трассе от Москва-Сити , по Рублевке и по Минскому шоссе. Азарово находится в окружении 40 Га Ново-Дарьинского леса
Для семейного отдыха на территории установлены детские площадки, фонтаны, благоустроены прогулочные зоны на берегу озера и по парку, проложена освещаемая дорожка с твердым покрытием в лесу. В Азарово функционируют три детских сада, в том числе известный на всю страну трёхъязычный сад «Кот в сапогах. Работает частная школа «Эра» для начальных и старших классов. Многие жители Рублёвки привозят сюда своих детей для получения знаний на иностранных языках.
Улицы поселка оформлены в современном стиле. Круглосуточно осуществляется охрана поселка.
Заинтересовал объект? Пишите или звоните нам в любое время!
Оставьте в сообщении свой номер телефона для обратной связи! Мы перезвоним вам в течение дня.
Наше агентство - прямой представитель собственника этого дома, поэтому мы сможем ответить на все ваши вопросы.
Каждому клиенту мы гарантируем полное юридическое сопровождение.
В удобное для вас время организуем показ!







































































