Продается 6-х комн. квартира, 523.4 кв.м., 5/5 эт
| Стоимость | 125 000 000 |
|---|---|
| Ремонт | Без отделки |
| Балкон | Лоджия |
| Доля в квартире | Нет |
| Онлайн показ | могу провести |
| Статус Недвижимости Авито | Квартира |
| Двор | Закрытая территория |
| Консьерж | Есть |
| Тип парковки | Подземная |
| Способ связи avito | По телефону и в сообщениях |
| Узаконена ли планировка | Есть |
| Есть ли право собственности | Есть |
| Тип дома cian | Монолитный |
| Номер телефона для подключения функционала чатов. выгрузка | +79261182707 |
| Комнат в квартире | 6 |
| Площадь, кв.м. | 523.4 |
| Площадь кухни, кв.м. | 63.5 |
| Этаж | 5 |
| Этажность | 5 |
| Материал стен | кирпично-монолитный |
| Населенный пункт | деревня Семенково |
|---|---|
| Район города | коттеджный посёлок Азарово Южное |
| Улица | улица Каштановая |
| Номер дома | 23 |
Живу в поселке, ключи на руках! Прямой представитель собственника! Показ в любое время! Квартира (не апартаменты)!
Продам эксклюзивную квартиру - пентхаус на старте продаж в новом доме по самой выгодной цене. Такая квартира - единственная на весь поселок!!!
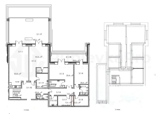
6 комнат, 2 этажа, расположена на 5 и 6 этажах. Терраса 89 м2, лоджия 25 м2. Прекрасные виды на парк, пруды и лес. Светлая гостиная-кухня-столовая 63,5 м2, 5 спален со своими санузлами и гардеробными комнатами, в две спальни можно организовать отдельный вход с 6 этажа, гостевой санузел, гардеробная и постирочная комнаты, коридор. Высокие потолки, панорамные окна
Цена квартиры будет повышаться.
Дом кирпично-монолитный, сдан в 2025 году. В квартиру заведено электричество 15 квт, разведено отопление, на входе в квартиру ввод для теплых водяных полов. Сделана стяжка с учетом теплых полов в зонах кухни, коридора и санузлов. Подземный паркинг, возможно приобрести дополнительные подсобные помещения на чердаке или в паркинге. На входе круглосуточная охрана, видеонаблюдение.
Не упустите свой шанс купить квартиру в самом экологичном поселке на Рублевке.
Азарово - отличное место для загородной жизни. В поселок можно попасть за 24 минуты по скоростной трассе от Москва-Сити , по Рублевке и по Минскому шоссе. Азарово находится в окружении 40 Га Ново-Дарьинского леса
Для семейного отдыха на территории установлены детские площадки, фонтаны, благоустроены прогулочные зоны на берегу озера и по парку, проложена освещаемая дорожка с твердым покрытием в лесу. В Азарово функционируют три детских сада, в том числе известный на всю страну трёхъязычный сад «Кот в сапогах. Работает частная школа «Эра» для начальных и старших классов. Многие жители Рублёвки привозят сюда своих детей для получения знаний на иностранных языках.
Улицы поселка оформлены в современном стиле. Круглосуточно осуществляется охрана поселка.
Заинтересовал объект? Пишите или звоните нам в любое время!
Оставьте в сообщении свой номер телефона для обратной связи! Мы перезвоним вам в течение дня.
Наше агентство - прямой представитель собственника этого дома, поэтому мы сможем ответить на все ваши вопросы.
Каждому клиенту мы гарантируем полное юридическое сопровождение.
В удобное для вас время организуем показ!
#ПродажаКвартиры #КвартираНаРублевке #КвартираВПоселке #НоваяКвартира #ЭкологичныйРайон #ЗеленыйУчасток #ПриватнаяЗона #ВысокийУровеньЖилплощади #ПанорамныеОкна #ВысокийПотолок #ТеплыйПол #ПодземныйПаркинг #КруглосуточнаяОхрана #Видеонаблюдение #Инфраструктура #ДетскиеСады #ЧастнаяШкола #ПрогулочныеЗоны #ОсвещаемаяДорожка #Уединенность #БлизостьКМоскве #ПолноеЮридическоеСопровождение #ПрямаяПродажа #ПродажаОтСобственника #ПоказКвартиры #ЭлитнаяНедвижимость #ЗагороднаяЖизнь #Рублёвка #Азарово #ЭлитныеДома #КомфортноеЖилье #СемейноеОтдых #МоскваСити #МинскоеШоссе #Ново-ДарьинскийЛес #СовременныйСтиль #Безопасность #ЭксклюзивнаяКвартира #КвартираСТеррасой #ЭкоДом #ЛучшийВыбор #ДляСобственниковКомпаний #ДляЧиновников #ДляТопМенеджеров #ДляБогатых





















































